Misery
Maltz Jupiter Theatre
Assistant Technical Director, 2025-2026 season
Directed By: Denis Jones
Lighting Designer: Dalton Hamilton
Scenic Designer: Anne Mundell
Costume Designer: Lex Liang
Technical Director: Nicolas Benavides
Video Designer: Adam J. Thompson
Sound Designer: Ernesto K. Gonzalez
Our first show for the 25-26 season at the Maltz Jupiter Theatre was the play Misery. A show about Stephen King's psychological thriller about novelist Paul Sheldon, who is held captive by his "number one fan" Annie Wilkes after a car crash, our musical takes place in Annie Wilkes home.
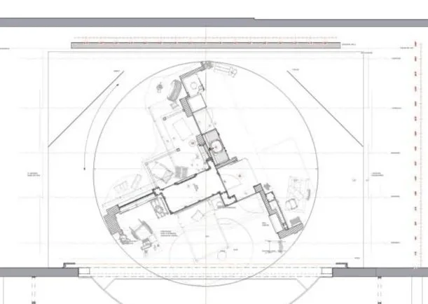
This show consisted of a three-room house on a turntable with a surround platform system, two large tree flats upstage and a false proscenium. I was responsible for the surround platform system, upstage trees and the false proscenium.
We had about 6 weeks to build the set, 5 days to load in and one day to load out with a team of 6, including myself and the Technical Director.
Complete 3D model
scenic design plate
Complete Set
Surround platform system 3D Model
trees 3D Model
False Proscenium 3D Model
Doors 3D Model